ATUTY
Doskonałe połączenie komunikacyjne z całym Trójmiastem zarówno autem, jak i środkami komunikacji miejskiej. Malownicze otoczenie, z kameralną zabudową jednorodzinną. Starannie zaprojektowana przestrzeń zapewniająca wysoki komfort życia i możliwość aranżacji wnętrz zgodnie z indywidualnymi potrzebami.
Zakup bezpośrednio od dewelopera, bez prowizji oraz PCC 2%.
LOKALIZACJA
Bojano to miejscowość zlokalizowana w województwie pomorskim, w powiecie wejherowskim, w gminie Szemud. Miejsce bardzo dobrze skomunikowane. W pobliżu znajduje się Węzeł Trasy Kaszubskiej. Domy zlokalizowane są w niedalekiej odległości od Gdyni (5,5 km) oraz Gdańska ( 11km).
Inwestycja znajduje się w cichej i spokojnej okolicy z pięknym, niepowtarzalnym widokiem. W okolicy pełna infrastruktura handlowo- usługowa, tj. szkoła, przedszkole, żłobek, supermarkety, przychodnia zdrowia, kościół, boiska itp.
NIERUCHOMOŚĆ
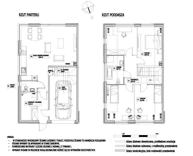
Dom bliźniak (B1 L1) o pow. całkowitej 162,44m2 w skład którego wchodzi:
PARTER
-salon z aneksem kuchennym (34,82m2) z oknem. W salonie panoramiczne okna w technologii suwanej wychodzące na ogród od strony południowej.
- toaleta (2,28m2),
- wiatrołap (4,90m2) z miejscem na szafę garderobianą
- garaż (16,69m2)
- pomieszczenie gospodarcze (5,04m2) z miejscem na pralkę i piec gazowy .
PIĘTRO:
- 4 sypialnie (10,08m2, 11,18m2, 11,67m2 i 13,05m2)
- duża łazienka (8,02m2) z oknem, z miejscem na wannę i kabinę prysznicową.
Dom usytuowany jest na działce znajduje o pow. 351 m2. Teren ogrodzony ( bez strony frontowej).
Budynek wyposażony w instalacje: kanalizacyjną, wodociągową, grzewczą, wentylacyjną, elektryczną, teletechniczną i alarmową.
Ogrzewanie gazowe (piec dwufunkcyjny Vaillant).
Standard wykończenia:
okna PCV, drzwi wejściowe antywłamaniowe, brama garażowa sterowana pilotem, dach pokryty blachą płaską na rąbek ,taras i podjazd wyłożone płytkami, trawa, tynki wewnętrzne gipsowe, ogrzewanie podłogowe, inst. elektryczna z osprzętem, inst. teletechniczna (dot. RTV, telefon, internet).
Cena brutto ( zawiera Vat 8 %).
INWESTYCJA
Projekt realizowany przez prężnie działającego dewelopera. Kameralne, nowoczesne budynki w ciekawej stylizacji będą wykonane przy zastosowaniu materiałów wysokiej jakości oraz przy użyciu nowoczesnych technologii. Inwestycja tworzona jest z dbałością o każdy szczegół stanowiąc połączenie stylowego wyglądu i wysokojakościowych materiałów. Termin zakończenia prac budowlanych planowany jest na IV kwartał 2025r.
Jeżeli zainteresowała Państwa nasza nowa inwestycja to już dzisiaj zapraszamy do rozmowy z ekspertem na temat wybranego domu.
Przeprowadzimy Państwa przez cały etap zakupu nieruchomości, a w przypadku zakupu na kredyt przedstawimy oferty przez wykwalifikowanych ekspertów kredytowych oraz bezpiecznie przeprowadzimy całą procedurę kredytową.
"Powyższa oferta ma charakter informacyjny i nie stanowi oferty handlowej w rozumieniu art. 66 §1 Kodeksu Cywilnego”.
969 000,00 PLN (5 965,28 PLN)
Dobrze skomunikowane - ostatni skrajny szereg
Dom (Bliźniak) na sprzedaż,
Bojano, Nad Rozlewiskiem
Dane szczegółowe
- Typ transakcji: sprzedaż
- Typ nieruchomości: Dom
- Lokalizacja: Bojano, Nad Rozlewiskiem
- Powierzchnia:162,44 m2
- Liczba pokoi: 5
- Rok budowy: 2025
- Piętro: 0 z 1
-
Powierzchnia działki:
351 m2
- Numer oferty: CP476504
- Cena: 969 000,00 PLN
- Cena za m2: 5 965,28 PLN
Kontakt z agentem: Dawid Kawecki Specjalista ds Obrotu Nieruchomościami
Dawid Kawecki
Opis nieruchomości
Film o nieruchomości
Mapa
Kontakt z agentem
Dawid Kawecki Specjalista ds Obrotu Nieruchomościami